150 qm 5 Schlafzimmer Haus in der Nähe Schwarzen Meer
SREDETS, BURGAS
ID: VIL441
|
|||
Schlafzimmer: 3 + beds, Möbliert Grund: 320 qm Gebiet: 30 km vom Schwarzen Meer km vom Meer: 30 |
|||
| Stadt: SREDETS (Einwohner: 8421) - 44 Häuser Durchschnittspreis SREDETS - € 27767 BURGAS Bezirke - 3817 Häuser Durchschnittspreis BURGAS Bezirke - € 47219 | |||
| « vorherig Haus | « zurück zum Haus Liste » | nächsten Haus » |
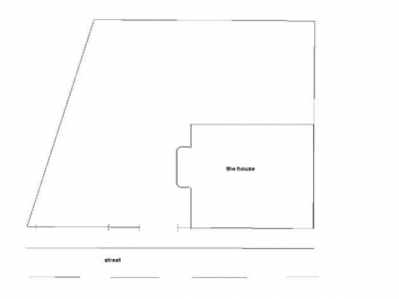
Das zweistöckige Haus ist massiv in der kleinen Stadt Sredetz entfernt. Seine Lage bietet eine Vielzahl von Möglichkeiten für Jagd und Fischerei.
Die Stadt Sredetz ist 10 km von Mandra See entfernt â € "der größte See in der Region und 35 km von Burgas Stadt, etwa 20 Minuten von der Verwaltungs-und Handelszentrum Burgas und vom internationalen Flughafen entfernt.
Es ist auch in der Nähe des Nationalparks von Strandja â € "in einer ruhigen Gegend mit frischer Luft und herrlicher Aussicht auf den malerischen Hügeln des Strandschagebirge.
Das Ministerium des öffentlichen Gesundheitswesens hat die Gegend wie sehr geeignet für die medizinische Behandlung von Lungenerkrankungen vorgeschlagen.
Die Gesamtfläche des Hauses beträgt 150 qm. und dem GARDENA € ™ s Bereich ist 320 sq m.
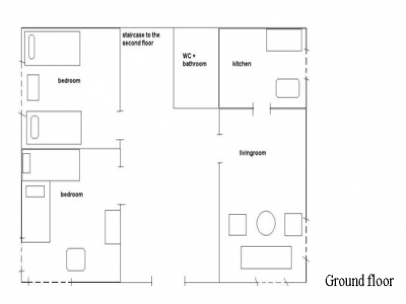
Es besteht aus zwei Etagen: - erste Stock besteht aus: einem Haupt-Wohnzimmer, einem Wohnzimmer, einer Küche, zwei Schlafzimmer und ein Bad mit WC. Es ist eine innere Treppe in den zweiten Stock, die aus 4 Zimmern, einer Küche und einer Terrasse besteht.
Schlaf s 10-11 Menschen ohne Zählen der Wohnzimmer.
Der Weg zum Haus ist das ganze Jahr über zugänglich.
- Burgas Intl Flughafen: 38 km.
- Nächster Strand: 30 km
- Auswandern nach Bulgarien, lebenskosten überprüfen
- Alle Häuser haben Strom.
- Über 98 Prozent aller Häuser haben Zugang zu fließendem Wasser, mit Ausnahme einiger kleinen abgelegenen Dörfern in den Bergen.
- Alle Häuser in den Dörfern haben eine Klärgrube, ist ein zentrales Abwassersystem nur in wenigen sehr großen Dörfern zur Verfügung.
- Alle Häuser haben Zugang zum Internet..
- Es gibt mindestens einen Dorfladen in jedem Dorf in Bulgarien, außer einigen kleinen abgelegenen Dörfern in den Bergen.
































