2 Schlafzimmer Haus, 592 qm Garten, 1,5 km. zum Meer
TOPOLA, DOBRICH
ID: BB2932
|
|||
Schlafzimmer: 3 + beds, Möbliert Grund: 592 qm Gebiet: 7 km. um Kavarna km vom Meer: 1.5 |
|||
| Dorf: TOPOLA (Einwohner: 90) - 92 Häuser Durchschnittspreis TOPOLA - € 52067 DOBRICH Bezirke - 5644 Häuser Durchschnittspreis DOBRICH Bezirke - € 33271 | |||
| « vorherig Haus | « zurück zum Haus Liste » | nächsten Haus » |
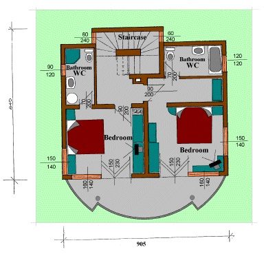
151 qm . Haus besteht aus:
- Erdgeschoss: Flur, Küche und Wohnzimmer und Esszimmer, Bad, Treppe in den zweiten Stock.
- Zweiter Stock: Diele, 2 Schlafzimmer, 2 Bäder, Balkon.
Schöne Aussicht.
Das Haus wird möbliert verkauft.
Das Grundstück ist 592 qm
- Zaun
Alle Einrichtungen wie Geschäfte, Post und regelmäßigen Verbindung.
Entfernungen:
- Schwarzes Meer: 1.5 km.
- Kavarna: 7 km.
- Varna (Flughafen): 50 km.
- Auswandern nach Bulgarien, lebenskosten überprüfen
- Alle Häuser haben Strom.
- Über 98 Prozent aller Häuser haben Zugang zu fließendem Wasser, mit Ausnahme einiger kleinen abgelegenen Dörfern in den Bergen.
- Alle Häuser in den Dörfern haben eine Klärgrube, ist ein zentrales Abwassersystem nur in wenigen sehr großen Dörfern zur Verfügung.
- Alle Häuser haben Zugang zum Internet..
- Es gibt mindestens einen Dorfladen in jedem Dorf in Bulgarien, außer einigen kleinen abgelegenen Dörfern in den Bergen.
Anbieter kontaktieren


















