292 qm Haus, 946 qm Garten, 10 km von Sandanski
LASKAREVO, BLAGOEVGRAD
ID: ZF3878
|
|||
Schlafzimmer: 3 + beds, Möbliert Grund: 946 qm Gebiet: 10 km von Sandanski km vom Meer: 155 |
|||
| Dorf: LASKAREVO (Einwohner: 200) - 3 Häuser Durchschnittspreis LASKAREVO - € 83830 BLAGOEVGRAD Bezirke - 430 Häuser Durchschnittspreis BLAGOEVGRAD Bezirke - € 48778 | |||
| « vorherig Haus | « zurück zum Haus Liste » | nächsten Haus » |
292 qm Haus, 946 qm Garten
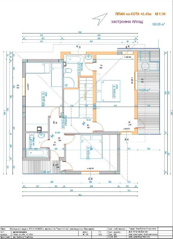
Der erste Stock von 92 Quadratmetern (2 semi-Ebenen)
Erste Ebene:
Zweiter Stock (100 qm):
Dachgeschoss (90 m²):
Das Haus wurde 2012 gebaut, spanische Fliesen und Laminat, italienischen Innentüren, Heizung, Möbel, Kunststofffenster, Solaranlage.
Der Preis beinhaltet Möbel und Geräte.
Entfernungen:
Der erste Stock von 92 Quadratmetern (2 semi-Ebenen)
Erste Ebene:
- Garage
- Fitness
- Badezimmer
- Wohnzimmer mit Küche (30 qm)
Zweiter Stock (100 qm):
- 3 Schlafzimmer
- 2 Bäder
- 2 Balkone mit Blick auf die Berge
Dachgeschoss (90 m²):
- kann 3 Schlafzimmer und ein Badezimmer aufgeteilt
Das Haus wurde 2012 gebaut, spanische Fliesen und Laminat, italienischen Innentüren, Heizung, Möbel, Kunststofffenster, Solaranlage.
Der Preis beinhaltet Möbel und Geräte.
Entfernungen:
- Sofia Flughafen - 175 km
- Flughafen Thessaloniki - 165 km
- Blagoevgrad - 75 km
- Asprvalta (Ägäis) - 155 km
- Auswandern nach Bulgarien, lebenskosten überprüfen
- Alle Häuser haben Strom.
- Über 98 Prozent aller Häuser haben Zugang zu fließendem Wasser, mit Ausnahme einiger kleinen abgelegenen Dörfern in den Bergen.
- Alle Häuser in den Dörfern haben eine Klärgrube, ist ein zentrales Abwassersystem nur in wenigen sehr großen Dörfern zur Verfügung.
- Alle Häuser haben Zugang zum Internet..
- Es gibt mindestens einen Dorfladen in jedem Dorf in Bulgarien, außer einigen kleinen abgelegenen Dörfern in den Bergen.
Anbieter kontaktieren















