127 qm 3 Schlafzimmer 3 Bäder Wohnung, in der Stadt, 3 km zum Meer, Neubau
VARNA, VARNA
|
€ 99,500
|
||||
ID: MKA465
|
||||
Schlafzimmer: Apartments Wohnfläche: 127 qm Schlafzimmer: 3 Schlafzimmer; Fußboden: 8/8; Aufzug: Ja Gebiet: in der Stadt km vom Meer: 3 |
||||
| Stadt: VARNA (Einwohner: 303594) - 851 Häuser Durchschnittspreis VARNA - € 84535 VARNA Bezirke - 4905 Häuser Durchschnittspreis VARNA Bezirke - € 46947 | ||||
| « vorherig Haus | « zurück zum Haus Liste » | nächsten Haus » |
127 qm 3 Schlafzimmer 3 Bäder Wohnung, in der Stadt, 3 km zum Meer, Neubau
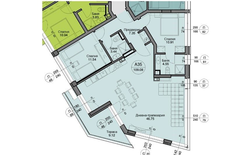
127 qm Wohnung in einem Neubau. Es befindet sich auf 8/8 Etagen.
Das ist eine Meer- und Stadtansicht.
Die Wohnung hat folgende Aufteilung:
- Eingangshalle, 3 Schlafzimmer jeweils mit Bad.
- Grosses Wohnzimmer mit Küche.
- Große Terrasse.
Die Wohnung ist nicht möbliert.
Entfernungen:
- 3 km zum Meer
- 3 km zum Zentrum von Varna
- 10 Autominuten vom Flughafen Warna entfernt
- Auswandern nach Bulgarien, lebenskosten überprüfen
- Alle Häuser haben Strom.
- Über 98 Prozent aller Häuser haben Zugang zu fließendem Wasser, mit Ausnahme einiger kleinen abgelegenen Dörfern in den Bergen.
- Alle Häuser in den Dörfern haben eine Klärgrube, ist ein zentrales Abwassersystem nur in wenigen sehr großen Dörfern zur Verfügung.
- Alle Häuser haben Zugang zum Internet..
- Es gibt mindestens einen Dorfladen in jedem Dorf in Bulgarien, außer einigen kleinen abgelegenen Dörfern in den Bergen.
Anbieter kontaktieren








