167 qm luxuriös eingerichtetes Haus, 280 qm Grundstück, Wohnanlage, 1,5 km zum Meer
BURGAS, BURGAS
|
€ 158,000
|
||||
ID: MK1607
|
||||
Schlafzimmer: 3, Möbliert Grund: 280 qm Gebiet: 1,5 km zum Meer km vom Meer: 1.5 |
||||
| Stadt: BURGAS (Einwohner: 181116) - 146 Häuser Durchschnittspreis BURGAS - € 73382 BURGAS Bezirke - 3835 Häuser Durchschnittspreis BURGAS Bezirke - € 47538 | ||||
| « vorherig Haus | « zurück zum Haus Liste » | nächsten Haus » |
167 qm luxuriös eingerichtetes Haus, 280 qm Grundstück, Wohnanlage, 1,5 km zum Meer
Freistehendes Haus mit Meerblick in der schönen und ruhigen Wohnanlage Victoria Hill, 2 km hinter Sarafovo in Richtung Pomorie gelegen.
Vollständig möbliert und mit dem Komfort eines Haushalts ausgestattet!
Als Extraausstattung gibt es Sonnenkollektoren, Gasheizung, Kamin!
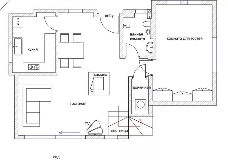
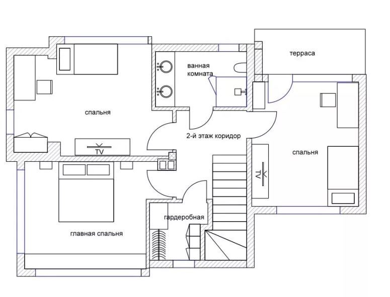
Mit einer Fläche von 167 qm und zwei Etagen hat das Haus folgende Aufteilung:
- Ebene I: separate Küche / voll ausgestattet /, offenes Wohnzimmer, Bad mit WC, Waschküche und Gästezimmer / Arbeitszimmer
- Ebene II: drei Schlafzimmer, Bad und separater Kleiderschrank.
Das Haus verfügt über zwei Parkplätze.
Der Garten mit seinen 277,5 qm ist wunderschön angelegt, mit Bewässerungssystem.
Es gibt einen Swimmingpool sowie Fußball-, Basketball- und Tennisplätze für Kinder, einen Spielplatz für die Kleinsten und ein neu eröffnetes Restaurant.
Wählen Sie einen friedlichen Lebensstil, nur einen Schritt vom Lärm der Großstadt entfernt.
Die Immobilie ist bei DZI voll versichert.
10 Autominuten von Burgas entfernt.
Entfernungen:
- 1,5 km zum Meer
- 10 km nach Burgas
- Auswandern nach Bulgarien, lebenskosten überprüfen
- Alle Häuser haben Strom.
- Über 98 Prozent aller Häuser haben Zugang zu fließendem Wasser, mit Ausnahme einiger kleinen abgelegenen Dörfern in den Bergen.
- Alle Häuser in den Dörfern haben eine Klärgrube, ist ein zentrales Abwassersystem nur in wenigen sehr großen Dörfern zur Verfügung.
- Alle Häuser haben Zugang zum Internet..
- Es gibt mindestens einen Dorfladen in jedem Dorf in Bulgarien, außer einigen kleinen abgelegenen Dörfern in den Bergen.




















