108 qm Haus, 700 qm Grundstück, 10 km nach Sandanski
MARIKOSTINOVO, BLAGOEVGRAD
|
€ 18,500
|
||||
ID: KVP1374
|
||||
Schlafzimmer: 3, Möbliert Grund: 700 qm Gebiet: 10 km nach Sandanski km vom Meer: 140 |
||||
| Dorf: MARIKOSTINOVO (Einwohner: 1244) - 9 Häuser Durchschnittspreis MARIKOSTINOVO - € 31487 BLAGOEVGRAD Bezirke - 430 Häuser Durchschnittspreis BLAGOEVGRAD Bezirke - € 48778 | ||||
| « vorherig Haus | « zurück zum Haus Liste » | nächsten Haus » |
108 qm Haus, 700 qm Grundstück, 10 km nach Sandanski
Zu verkaufen Haus mit 700 qm Garten und Nebengebäude / Sommerküche /.
Das Haus ist einstöckig mit einem Projekt für den zweiten Stock.
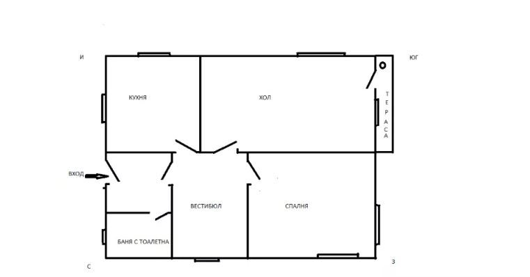
- Layout: Eingangshalle, Lounge und drei separate Räume.
- Die Sommerküche befindet sich in einem separaten, 80 m² großen Gebäude, da der Raum selbst 20 m² unter dem Keller ist.
Halbfertiges Bad mit WC, zusätzliches Außentoilette.
700 qm Garten.
Zwei Brunnen im Garten und zwei im Haus und in der Sommerküche.
Obstbäume: Oliven, Feigen, Granatapfel, Quitte, Wein.
Entfernungen:
- 10 km nach Sandanki
- 140 km zum Ägäischen Meer
- Auswandern nach Bulgarien, lebenskosten überprüfen
- Alle Häuser haben Strom.
- Über 98 Prozent aller Häuser haben Zugang zu fließendem Wasser, mit Ausnahme einiger kleinen abgelegenen Dörfern in den Bergen.
- Alle Häuser in den Dörfern haben eine Klärgrube, ist ein zentrales Abwassersystem nur in wenigen sehr großen Dörfern zur Verfügung.
- Alle Häuser haben Zugang zum Internet..
- Es gibt mindestens einen Dorfladen in jedem Dorf in Bulgarien, außer einigen kleinen abgelegenen Dörfern in den Bergen.
Anbieter kontaktieren






