Luxuriöse, voll möblierte Wohnung in einer Wohnanlage, nur 15 Minuten von Sofia entfernt
NOVI HAN, SOFIA PROVINCE
|
€ 99,900
|
||||
ID: KCP03A138
|
||||
Schlafzimmer: Apartments, Möbliert Wohnfläche: 93.16 qm Schlafzimmer: 2 Schlafzimmer Gebiet: 15 km nach Sofia Stadt km vom Meer: 480 |
||||
| Dorf: NOVI HAN (Einwohner: 2104) - 23 Häuser Durchschnittspreis NOVI HAN - € 68519 SOFIA PROVINCE Bezirke - 1189 Häuser Durchschnittspreis SOFIA PROVINCE Bezirke - € 34780 | ||||
| « vorherig Haus | « zurück zum Haus Liste » | nächsten Haus » |
Luxuriöse, voll möblierte Wohnung in einer Wohnanlage, nur 15 Minuten von Sofia entfernt
Die Unterkunft befindet sich im Wohnkomplex Central Park, nur 15 km von der Hauptstadt Sofia und dem internationalen Flughafen Sofia entfernt. Der Zugang zur Hauptstadt ist dank des Trakiya Highway schnell und einfach.
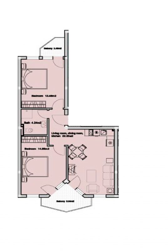
Diese schöne Wohnung befindet sich im ersten Stock und bietet eine Gesamtwohnfläche von 93,16 Quadratmetern. Luxuriös eingerichtet und bereit für den sofortigen Einzug. Fußbodenheizung, neue PVC-Fensterrahmen, dreifach verglaste Fenster und japanische Klimaanlagen in jedem Zimmer. Disposition: 2 Schlafzimmer, Wohnzimmer mit Küche, Flur, Bad / WC und zwei Balkone.
Der Komplex bietet alle Annehmlichkeiten für ein ganzjähriges Leben und einen Urlaub in voller Wertigkeit:
- Handels- und Wellnesszentren
- Fitness- und Hallenbad
- Supermarkt und Geschäfte
- medizinisches Zentrum und Rezeption
- Restaurant mit Bar
- Kinderspielplatz
- weitläufige Grünflächen
- Parkplätze
- Schwimmbad
- Minigolfplatz, Tennisplatz, Basketball- und Volleyballplätze
Nur wenige Minuten vom größten Wirtschafts-, Verwaltungs-, Bildungs- und Kulturzentrum Bulgariens entfernt - Sofia. Gleichzeitig ist es weit entfernt vom Lärm der Großstadt, dem harten und drängenden Verkehr und dem Tagesablauf der Hauptstadt. Dies hat jedoch keine Auswirkungen auf die gute Kommunikationsverbindung - nur 500 Meter bis zum Trakiya Highway. Im Dorf Ravno Pole (7 km) finden Sie einen großen und modernen Golfplatz. Der Ognyanovo-See liegt in der Nähe des Komplexes und bietet großartige Angel- und Campingmöglichkeiten. Der Vitosha-Berg ist ein bevorzugter Ort für Sofa-Bewohner zum Skifahren und Snowboarden.
- Auswandern nach Bulgarien, lebenskosten überprüfen
- Alle Häuser haben Strom.
- Über 98 Prozent aller Häuser haben Zugang zu fließendem Wasser, mit Ausnahme einiger kleinen abgelegenen Dörfern in den Bergen.
- Alle Häuser in den Dörfern haben eine Klärgrube, ist ein zentrales Abwassersystem nur in wenigen sehr großen Dörfern zur Verfügung.
- Alle Häuser haben Zugang zum Internet..
- Es gibt mindestens einen Dorfladen in jedem Dorf in Bulgarien, außer einigen kleinen abgelegenen Dörfern in den Bergen.

































