410 qm Wohnfläche - 3 Häuser, landwirtschaftliche Gebäude, Region Wraza
OSTROV, VRATSA
ID: KCP09H667
|
|||
Schlafzimmer: 3 + beds, Möbliert Grund: 900 qm Gebiet: Region Vratsa km vom Meer: 380 |
|||
| Dorf: OSTROV (Einwohner: 849) - 48 Häuser Durchschnittspreis OSTROV - € 10884 VRATSA Bezirke - 830 Häuser Durchschnittspreis VRATSA Bezirke - € 16681 | |||
| « vorherig Haus | « zurück zum Haus Liste » | nächsten Haus » |
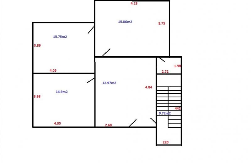
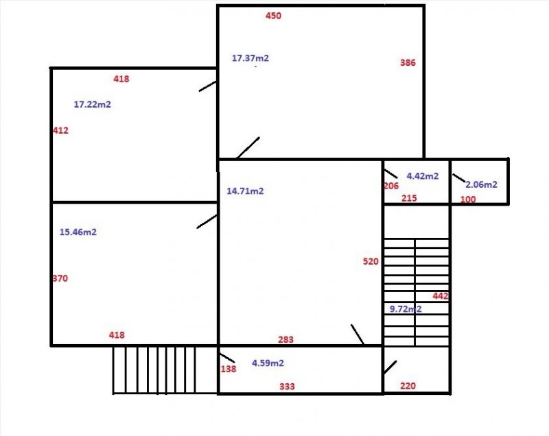
3 Häuser und Wirtschaftsgebäude, insgesamt bebaute Fläche von 410 qm, guter Preis, in der Nähe der Donau
Das Anwesen befindet sich in einem Dorf liegt 20 km von 80 km von den Städten von Lom und Vratsa entfernt der Stadt Oriahovo, entfernt. Die Donau ist 300 m entfernt!
Erstes Haus: 180 qm Wohnbereich
- Stock 1: ein Schlafzimmer, eine Küche, ein Keller, ein Badezimmer, ein Korridor
- Stock 2: ein Wohnzimmer, 3 Schlafzimmer, ein Abstellraum, Terrasse.
Zweites Haus: 150 qm Wohnbereich
- Stock 1: 2 Keller, eine Küche und ein Schlafzimmer;
- Stock 2: 3 Zimmer
Drittens Haus: 2 Zimmer
Es gibt Strom und Wasserversorgung. Das Haus erste Haus ist in gutem Zustand. Die anderen 2 Häuser renovierungsbedürftig.
Die Größe der Garten ist 900 qm Es ist ein Bauernhaus.
- Auswandern nach Bulgarien, lebenskosten überprüfen
- Alle Häuser haben Strom.
- Über 98 Prozent aller Häuser haben Zugang zu fließendem Wasser, mit Ausnahme einiger kleinen abgelegenen Dörfern in den Bergen.
- Alle Häuser in den Dörfern haben eine Klärgrube, ist ein zentrales Abwassersystem nur in wenigen sehr großen Dörfern zur Verfügung.
- Alle Häuser haben Zugang zum Internet..
- Es gibt mindestens einen Dorfladen in jedem Dorf in Bulgarien, außer einigen kleinen abgelegenen Dörfern in den Bergen.
Anbieter kontaktieren
























