130 qm Landhaus aus Stein, in der Nähe von Kur-und Wintersportort, eine wunderbare Aussicht
BEDEN, SMOLYAN
|
€ 7,490
|
||||
ID: RG101
|
||||
Schlafzimmer: 3, Möbliert Grund: 600 qm Gebiet: Rhodopen km vom Meer: 175 |
||||
| Dorf: BEDEN (Einwohner: 417) - 19 Häuser Durchschnittspreis BEDEN - € 43784 SMOLYAN Bezirke - 1025 Häuser Durchschnittspreis SMOLYAN Bezirke - € 38349 | ||||
| « vorherig Haus | « zurück zum Haus Liste » | nächsten Haus » |
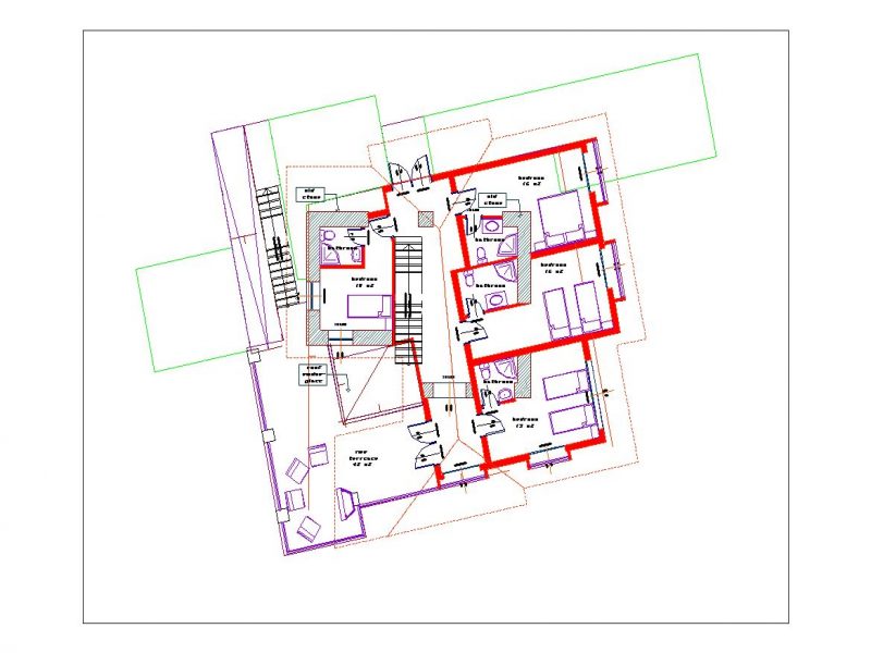
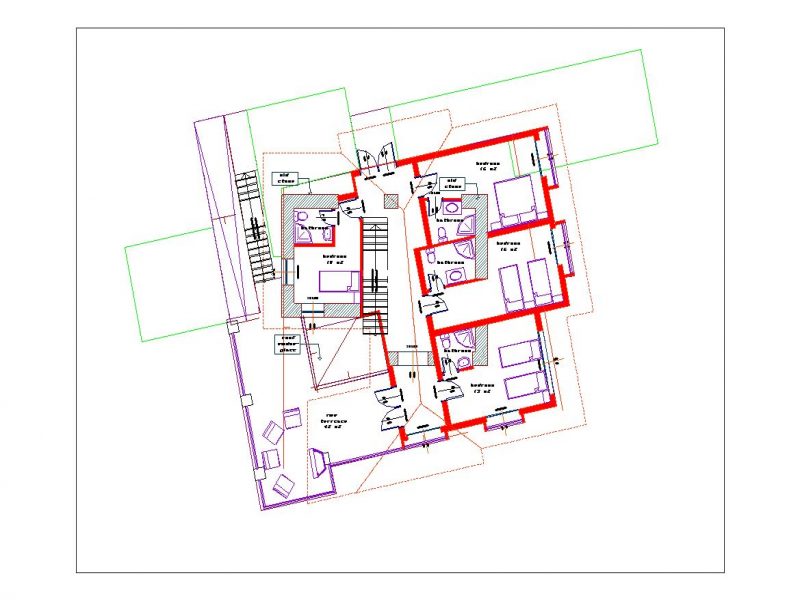
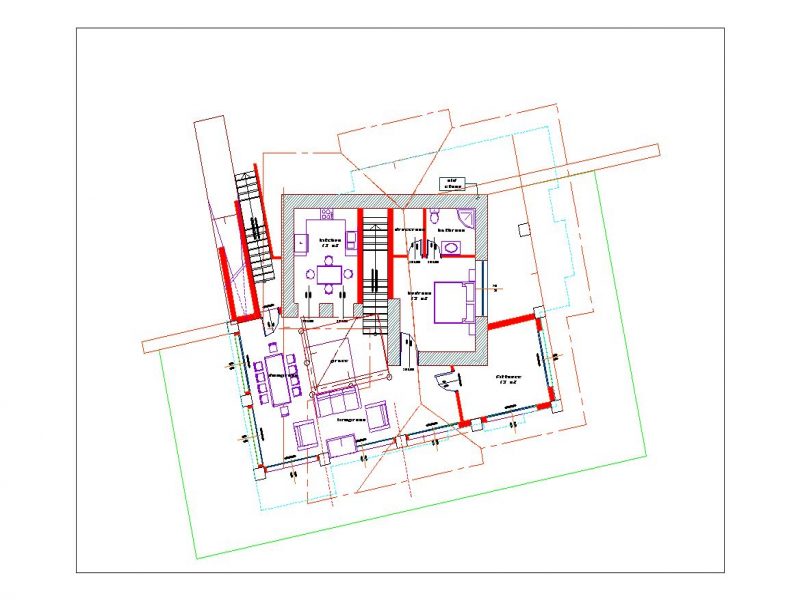
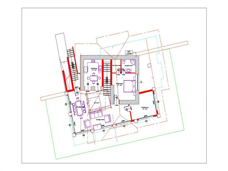
130 qm Landhaus aus Stein in der SPA Dorf Beden.
- Etage 1: großen offenen Raum
- Etage 2: 3 Zimmer
Das Grundstück ist 600 qm mit herrlichem Blick auf den höchsten Gipfel der Rhodopen mounatins - Snezhanka und Perelik.
- Ganzjährig Asphaltstraße Zugang tot er Eigentum.
In der Eigenschaft:
- zentrale Wasserversorgung
- Strom
- zentrale Kanalisation
Das Gebiet hat viele Wanderwege zum Wandern.
In der Nähe gibt es auch Fluss Forellen und Barben.
- ungefähre Kosten für die Reparatur (schlüsselfertig) - € 13.000 (rund 10.000 EUR)
einschließlich komplettes Haus Reparaturen, Badezimmer mit bioilers, Einbauküche ausgestattet, aber keine Geräte, nicht enthalten Möbel
Bevor die Sanierung beginnen, wird ein Vertrag unterzeichnet Angabe der Sanierungsarbeiten und den Preis.
Entfernung:
- Mineralquellen - im Dorf
- Fluss zum Angeln: 500 m.
- SPA Resort Devin: 13 km
- Skigebiet Pamporovo: 28 km
- Smoljan: 39 km
- Plovdiv Flughafen: 102 km
- Sandstrände in Griechenland: 175 km
- Sofia Flughafen: 218 km
- Auswandern nach Bulgarien, lebenskosten überprüfen
- Alle Häuser haben Strom.
- Über 98 Prozent aller Häuser haben Zugang zu fließendem Wasser, mit Ausnahme einiger kleinen abgelegenen Dörfern in den Bergen.
- Alle Häuser in den Dörfern haben eine Klärgrube, ist ein zentrales Abwassersystem nur in wenigen sehr großen Dörfern zur Verfügung.
- Alle Häuser haben Zugang zum Internet..
- Es gibt mindestens einen Dorfladen in jedem Dorf in Bulgarien, außer einigen kleinen abgelegenen Dörfern in den Bergen.
Anbieter kontaktieren




































