Haus 115m2 (im Bau), 610m2 Garten, zwei Schlafzimmer, 20 km vom Schwarzen Meer
TRASTIKOVO, BURGAS
|
€ 59,990
|
||||||||
ID: ZF1138
|
||||||||
Schlafzimmer: 3, Möbliert Grund: 610 qm Gebiet: 20 km von Burgas km vom Meer: 20 |
||||||||
| Dorf: TRASTIKOVO (Einwohner: 383) - 56 Häuser Durchschnittspreis TRASTIKOVO - € 45305 BURGAS Bezirke - 3833 Häuser Durchschnittspreis BURGAS Bezirke - € 47466 | ||||||||
| « vorherig Haus | « zurück zum Haus Liste » | nächsten Haus » |
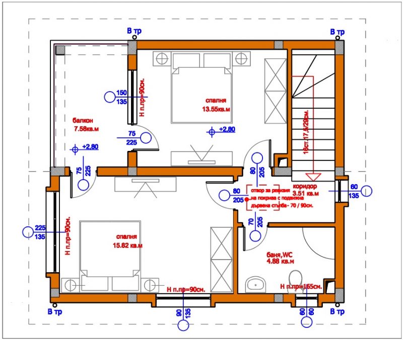
Das Haus besteht aus zwei Etagen mit einer Gesamtfläche (TFA) 115 m:
Erdgeschoss- Vorraum, Wohnzimmer mit Küche, Waschküche, Bad, WC und Balkon.
Treppe zum zweiten Stock.
Zweiter Stock- Vorraum, Bad mit WC, zwei Schlafzimmer mit einer großen Terrasse.
Das Haus ist völlig unabhängig und befindet sich auf einem Grundstück gelegen - 610 qm:
- Vorgarten - Garten
- Hinterhof, die für industrielle Zwecke geeignet ist
- Schuppen für Ruhe und Entspannung.
Das Haus wird vollständig durch den Schlüssel zu 31.03.2014 fertig gestellt und verfügt über alle notwendigen Dokumente.
Ort:
- 20 km von der Stadt Burgas und den gleichen Abstand vom Meer.
25 km vom internationalen Flughafen in Burgas
Zahlungsweise:
Option 1
- 2000 Euro Anzahlung
- 30. | | | | | |. bis zu einem Monat nach der Unterzeichnung des Vorvertrages
- 30. | | | | | |. nach Abschluss der Dach
- 30. | | | | | |. nach Abschluss
- 10. | | | | | |. nach Erhalt der ACT 16
Option 2(ohne Rate |. | | | | |. Bei 1 Jahr)
- 2000 Euro Anzahlung
- 30. | | | | | |. bis zu einem Monat nach der Unterzeichnung des Vorvertrages
- 30. | | | | | |. bis 20.02.2014
- 30. | | | | | |. bis 2014.05.25
- 10. | | | | | |. bis 2014.09.20
Natur in der Region ist erstaunlich, und die Luft ist frisch und klar.
- Auswandern nach Bulgarien, lebenskosten überprüfen
- Alle Häuser haben Strom.
- Über 98 Prozent aller Häuser haben Zugang zu fließendem Wasser, mit Ausnahme einiger kleinen abgelegenen Dörfern in den Bergen.
- Alle Häuser in den Dörfern haben eine Klärgrube, ist ein zentrales Abwassersystem nur in wenigen sehr großen Dörfern zur Verfügung.
- Alle Häuser haben Zugang zum Internet..
- Es gibt mindestens einen Dorfladen in jedem Dorf in Bulgarien, außer einigen kleinen abgelegenen Dörfern in den Bergen.
Anbieter kontaktieren























