Haus 167 m², 4 Schlafzimmer, 2 Bäder, 400 m² Grundstück, 8 km. Meer, am Stadtrand von Varna
VARNA, VARNA
ID: BB2128
|
|||
Schlafzimmer: 3 + beds, Möbliert Grund: 400 qm Gebiet: Stadtrand von Varna km vom Meer: 8 |
|||
| Stadt: VARNA (Einwohner: 303594) - 849 Häuser Durchschnittspreis VARNA - € 84626 VARNA Bezirke - 4876 Häuser Durchschnittspreis VARNA Bezirke - € 46901 | |||
| « vorherig Haus | « zurück zum Haus Liste » | nächsten Haus » |
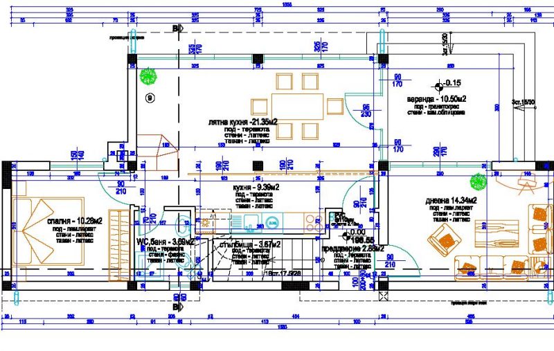
Haus 167 qm . auf zwei Etagen bestehend aus:
- Erster Stock: Küche und Wohnzimmer, 2 Schlafzimmer, Bad, Treppe in den zweiten Stock.
- Zweiter Stock: 2 Schlafzimmer, Bad, Balkon.
- Schöne Aussicht.
- Preis 95.000 € Haus fertig.
- Es besteht die Möglichkeit der Ratenzahlung.
Landen 400 qm
- Parkplatz
- Auswandern nach Bulgarien, lebenskosten überprüfen
- Alle Häuser haben Strom.
- Über 98 Prozent aller Häuser haben Zugang zu fließendem Wasser, mit Ausnahme einiger kleinen abgelegenen Dörfern in den Bergen.
- Alle Häuser in den Dörfern haben eine Klärgrube, ist ein zentrales Abwassersystem nur in wenigen sehr großen Dörfern zur Verfügung.
- Alle Häuser haben Zugang zum Internet..
- Es gibt mindestens einen Dorfladen in jedem Dorf in Bulgarien, außer einigen kleinen abgelegenen Dörfern in den Bergen.
Anbieter kontaktieren


















